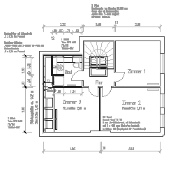
Objekt: Dachgeschossausbauten in Stadthäusern und Mehrfamilien-Wohnhäusern
Planungsleistungen: Grundlagenermittlung bis
Objektüberwachung (Dillstraße 4, Rutschbahn 17);
Grundlagenermittlung bis Genehmigungsplanung (Grindelberg 77)
Ausführungsplanung
Vorbereitung und Mitwirkung bei der Vergabe
Objektüberwachung (Koopstraße 14)